PROCESS MASS MODELS

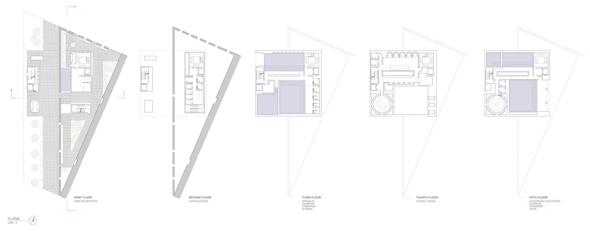
CLOCKWISE FROM FAR RIGHT: SHOWER ROOM, TEPIDARIUM, FRIDGIDARIUM, COCKTAIL LOUNGE, SAUNA

OUTDOOR TEPIDARIUM

ENVIRONMENTAL SYSTEMS

MECHANICAL SYSTEMS

STRUCTURAL SYSTEMS

STRUCTURAL MODEL
STRUCTURAL MODEL
STRUCTURAL MODEL
STRUCTURAL MODEL

EXPERIENTIAL LIGHT STUDIES

APERTURE MODEL 1
APERTURE MODEL 1
APERTURE MODEL 2
APERTURE MODEL 2
Back to Top